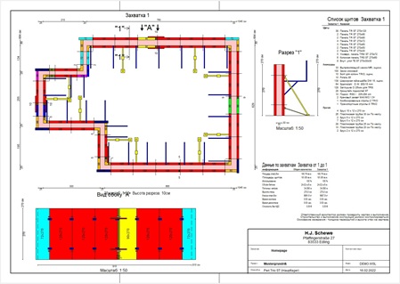
Быстро и просто рассчитайте опалубку для строительного проекта. Программное обеспечение EuroSchal...
Рационализация, экономия рабочего времени, снижение затрат - всего этого можно добиться с помощью EuroSchal® на ваших строительных площадках.
Удобная навигация по меню позволяет рационально работать с EuroSchal® без особых усилий и подготовки.
Используйте EuroSchal® для своих будущих опалубочных работ. Таким образом, вы сокращаете расходы на проезд между строительной площадкой и местом хранения. Отсутствие, слишком малое количество или неправильные элементы опалубки на площадке будут устранены.
Ваш бригадир склада и люди со стройплощадки быстрее достигнут результатов, если вы сможете предоставить им больше помощи в виде списков материалов, опалубки или планов цикла. Следите за элементами опалубки даже на нескольких строительных площадках.
Мы не зависим от производителей опалубки и поэтому можем предложить соответствующую программу для всех распространенных типов опалубки.
Конечно, мы также можем объединить в одной программе несколько типов опалубки, даже разных производителей.
Если у вас возникли вопросы о EuroSchal®, пожалуйста, обращайтесь к нам.
С наилучшими пожеланиями
Ваша команда EuroSchal
