Sehr geehrte Damen und Herren,
Schnell und Einfach, Schalung ausrechnen für ein Bauvorhaben. Euroschal Software...
Rationalisieren, Arbeitszeit einsparen, Kosten senken, dies alles erreichen Sie mit EuroSchal® auf Ihren Baustellen.
Eine benutzerfreundliche Menüführung, ermöglicht auch Ihnen ohne großen Aufwand oder Schulung mit EuroSchal® rationell zu arbeiten.
Verwenden Sie EuroSchal® für Ihre zukünftigen Schalungseinsätze. Dadurch senken Sie Ihre Fahrtkosten zwischen Baustelle und Lagerplatz. Die Fehlzeiten, zuwenig oder falsche Schalelemente vor Ort, werden beseitigt.
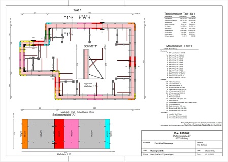
Ihr Lagermeister und die Männer von der Baustelle werden schnellere Ergebnisse liefern, wenn Sie Ihnen mehr Hilfen in Form von Materiallisten, Schal- oder Taktpläne zu Verfügung stellen können.
Behalten Sie den Überblick der Schalungselemente auch auf mehreren Baustellen.
Wir sind unabhängig von Schalungsherstellern, und somit in der Lage, für alle gängigen Schalungstypen das entsprechende Programm anzubieten.
Selbstverständlich ist es uns auch möglich, mehrere Schalungstypen, auch Hersteller übergreifend in einem Programm zu integrieren.
Für eventuelle Fragen zu EuroSchal®, stehen wir Ihnen jederzeit gerne mit Rat und Tat zur Seite.
Mit freundlichen Grüßen
Ihr EuroSchal-Team
