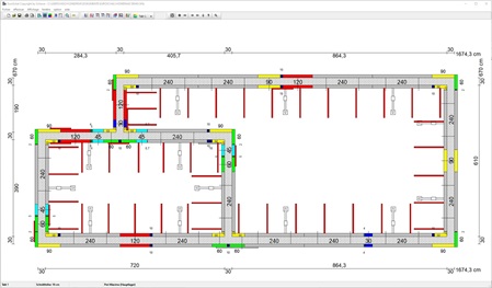
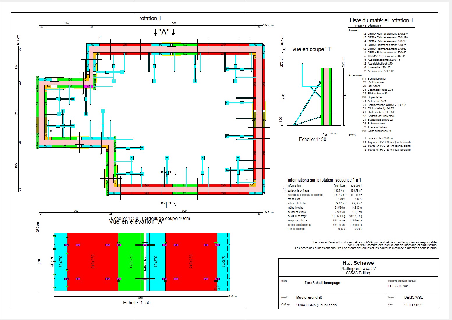
Rapide et simple, calculer le coffrage pour un projet de construction. Le logiciel Euroschal...
Rationaliser, économiser du temps de travail, réduire les coûts, tout cela est possible avec EuroSchal® sur vos chantiers.
Un menu convivial vous permet de travailler de manière rationnelle avec EuroSchal® sans grand effort ni formation.
Utilisez EuroSchal® pour vos futures interventions de coffrage. Vous réduirez ainsi vos frais de déplacement entre le chantier et le lieu de stockage. Les absences, les éléments de coffrage insuffisants ou incorrects sur place sont éliminés.
Votre chef de dépôt et les hommes du chantier obtiendront des résultats plus rapides s'ils peuvent leur fournir davantage d'aides sous forme de listes de matériel, de plans de coffrage ou de plans de cadence. Gardez une vue d'ensemble des éléments de coffrage, même sur plusieurs chantiers.
Nous sommes indépendants des fabricants de coffrages, et donc en mesure de proposer le programme correspondant à tous les types de coffrages courants.
Bien entendu, il nous est également possible d'intégrer plusieurs types de coffrage dans un même programme, même s'ils proviennent de différents fabricants.
Si vous avez des questions concernant EuroSchal®, nous sommes à votre disposition pour vous aider et vous conseiller.
Avec nos meilleures salutations
Votre équipe EuroSchal
