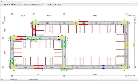
Facile e veloce, calcola la cassaforma per un progetto di costruzione. Il software EuroSchal...
Razionalizzare, risparmiare tempo di lavoro, ridurre i costi, potete ottenere tutto questo con EuroSchal® nei vostri cantieri.
Un menu di navigazione facile da usare vi permette di lavorare razionalmente con EuroSchal® senza grande sforzo o formazione.
Utilizzate EuroSchal® per le vostre future operazioni di casseratura. In questo modo si riducono i costi di viaggio tra il cantiere e il luogo di stoccaggio. Le assenze, gli elementi di cassaforma troppo pochi o sbagliati sul posto, saranno eliminati.
Il vostro caporeparto di magazzino e gli uomini del cantiere otterranno risultati più rapidi se potrete fornire loro un maggiore aiuto sotto forma di liste di materiali, casseforme o piani di ciclo. Tenere traccia degli elementi della cassaforma anche in diversi cantieri.
Siamo indipendenti dai produttori di casseforme e siamo quindi in grado di offrire il programma appropriato per tutti i tipi comuni di casseforme.
Naturalmente, è anche possibile per noi integrare diversi tipi di casseforme in un programma, anche tra produttori diversi.
Se avete domande su EuroSchal®, non esitate a contattarci.
Con cordiali saluti
La vostra squadra EuroSchal
