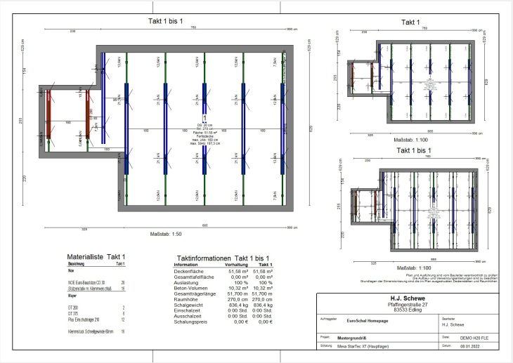
Mayer Schaltechnik, encofrado de aluminio para losas MiniMAX

EUR 450,00

sin impuestos más gastos de envío

Rodamiento de encofrado para EuroSchal. Ahora debe añadir un programa de encofrado Muro versión completa o actualización.